Das Kunsthaus Bock in Landshut – DIY-Traum mit architektonischem Feingefühl
Was heute als charmantes, individuell gestaltetes Familienhaus in Landshut begeistert, war ursprünglich ein unscheinbares Objekt, das kaum jemand wollte. 2019 kauften Emely und Markus Bock das in die Jahre gekommene Einfamilienhaus – und verwandelten es mit viel Eigenleistung, Kreativität und technischem Know-how in ein modernes, wohnliches Zuhause mit Charakter.

Das Herzstück des Hauses ist eine selbst entworfene und geschweißte Stahlwangentreppe mit integrierter LED-Beleuchtung – ein echtes Meisterwerk, das Funktion und Design vereint. Auch beim Boden wurde Wert auf Qualität und Handarbeit gelegt: Alte Holzdielen vom Dachboden wurden aufbereitet und wiederverwendet, z. B. für die DIY-Garderobe im Eingangsbereich.
Viele Elemente wurden technisch durchdacht und mit einem gestalterischen Anspruch umgesetzt. So wurden z. B. Lautsprecher in das grüne Wohnkonzept integriert, Klimaanlagen funktional verkleidet und auch die Raumstruktur gezielt verändert. Aus einem früher eher kleinteiligen Grundriss entstand durch Umbauten ein großzügiger, offener Wohnbereich.
Ein besonderes Augenmerk liegt auf Multifunktionalität und Wohnqualität für die ganze Familie. So entstand beispielsweise ein „Nest“ im oberen Bereich des Hauses – ein Rückzugsort aus Holz mit professionellem Einstieg, kindersicher und gemütlich zugleich.
Trotz umfangreicher Eigenleistung – vom Schweißen bis zum Fliesenlegen – wurde nicht am Detail gespart: Saubere Ausrichtung, akkurate Verarbeitung und durchdachte Planung prägen jedes Zimmer. Technisch anspruchsvolle Elemente wie Wandverkleidungen, Lichtinstallationen oder versteckte Technikkomponenten fügen sich nahtlos in das Gesamtbild ein.
Hard Facts
- Standort: Landshut, Bayern
- Baujahr: Ursprünglich älteres Bestandshaus, übernommen 2019
- Bewohner: Familie mit zwei Kindern
- Umbauphase: seit 2019 laufende Sanierung & Ausbau in Eigenleistung
- Kosten: Haus ca. 250.000 Euro, Sanierung ca. 300.000 Euro
Besonderheiten
- Smart & nachhaltig dank hoher Dämmung sowie nachhaltigem Heiz-, Kühl- und Energiekonzept
- DIY-Stahltreppe mit LED
- Wiederverwertung alter Holzelemente
- Versteckte Technik (z. B. Lautsprecher, Klimaanlage)
- Multifunktionale Raumlösungen (z. B. „Nest“-Konstruktion)
- Integration technischer Komponenten in ästhetische Konzepte
- Ausbau weiterer Wohneinheiten zur späteren Vermietung und/oder barrierefreier Nutzung im Alter
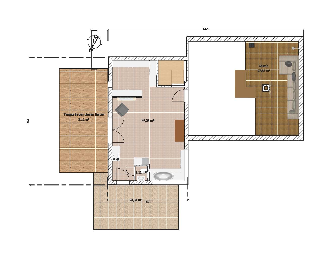
Grundrisse
Die vorher Galerie

