Beschreibung
Weg vom traditionellen Bungalow-Bau, hin zum modernen Loft-Charakter
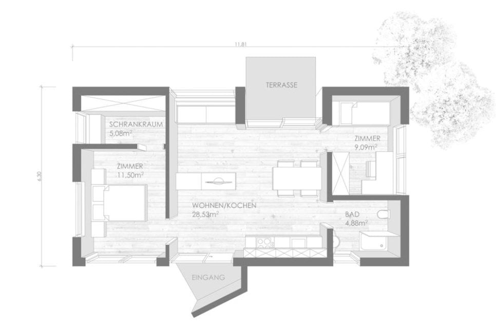
Haus Alma ermöglicht durch die spezielle Bauweise barrierefreies Wohnen auf einer Ebene. Die Architektur ist geprägt von einer klaren, an den Bauhausstil angelehnten Formensprache. Haus Alma zeichnet sich dabei insbesondere durch Vielseitigkeit aus. Der Grundriss lässt sich individuell an die Bedürfnisse der Bauherren anpassen.
Konstruktiv überzeugt Haus Alma durch das für Rubner charakteristische Holzriegelwandsystem aus biologischen Bau- und Dämmstoffen (Kork, Holzweichfaser).






