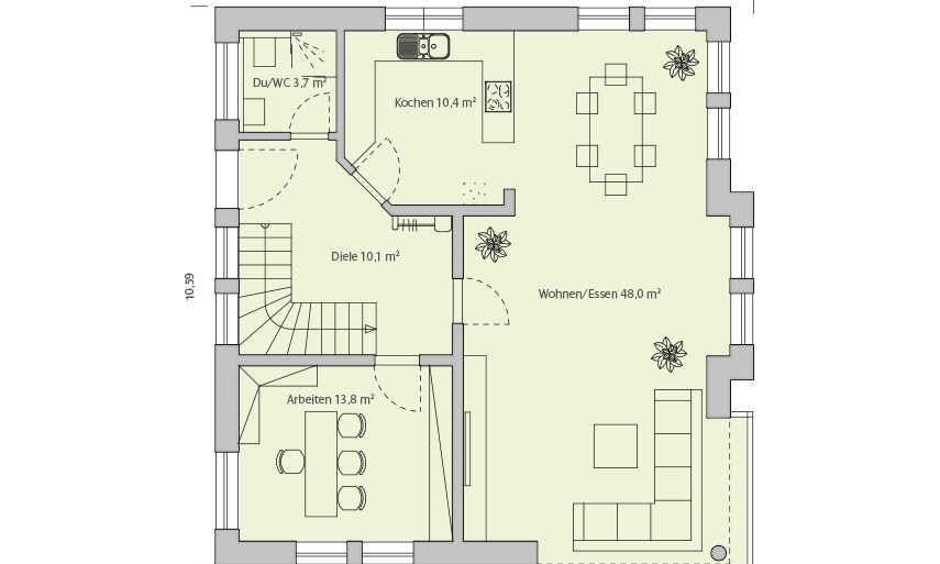
Beschreibung
Das Musterhaus aus massiven Klima-POR-Ton-Wandelementen und mit Klimadecke, die im Sommer kühlt und im Winter effizient heizt. Lechner Massivhaus produziert in den eigenen Werken völlig unabhängig von der Witterung Massivhäuser mit Kellern. Dies ermöglicht uns alle Wünsche/Grundrisse der Bauherren zu realisieren. Das Musterhaus können Sie in verschiedenen Größen/Wohnflächen als Stadtvilla, Bauhausvilla, klassisches Einfamilienhaus, Bungalow oder Doppelhausvariante erhalten.









