Beschreibung
Fachwerk-Villa mit Gartenparadies
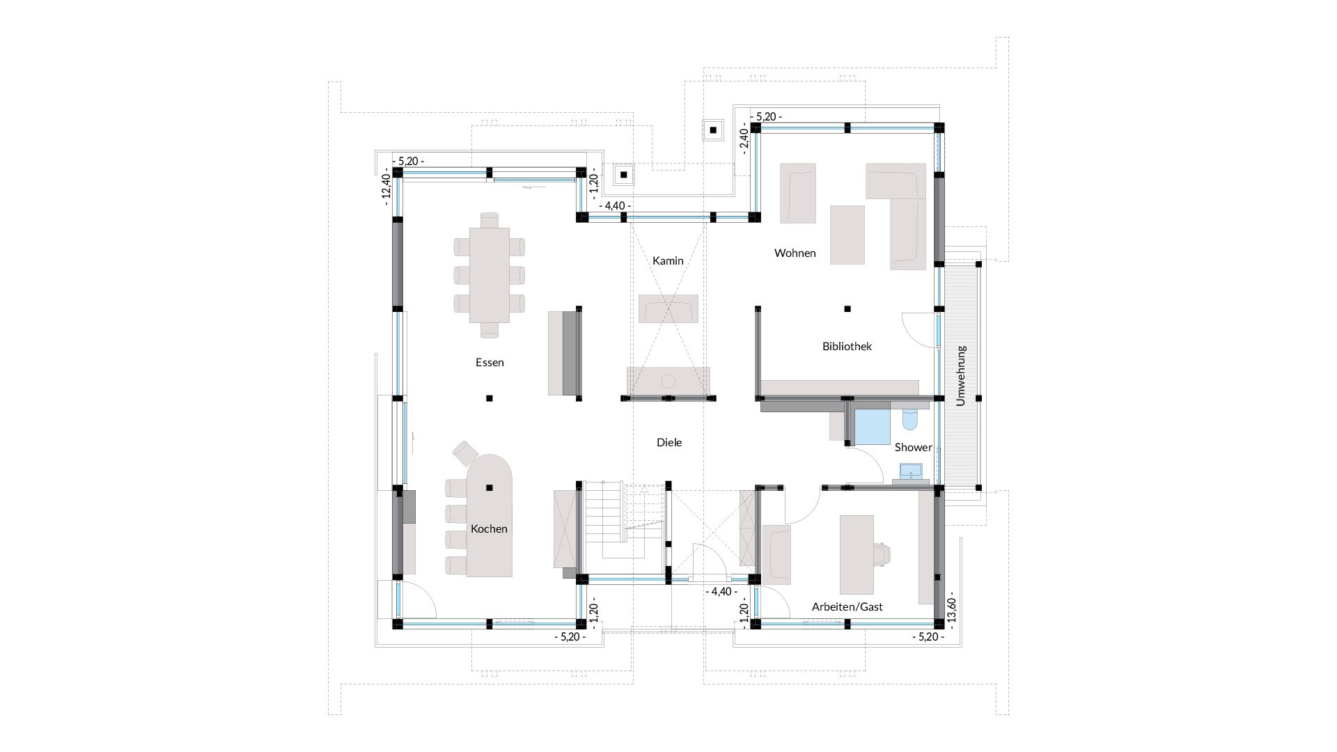
In diesem weißen Traumhaus trifft Design auf höchste Ansprüche an Wohnqualität. Ein lichtdurchflutetes Haus, ganzheitlich entworfen nach minimalistischen Prinzipien. Mit klaren Linien und einer wiederkehrenden Formensprache – von der Hausarchitektur bis zu den Einrichtungsdetails und der Außenbereichsgestaltung. Die beiden Pultdächer prägen die Silhouette des Hauses und sind durch ein Flachdach in der Mitte verbunden. Durch den freien Grundriss im Erd- und Dachgeschoss kommen so facettenreiche Lichtachsen zustande, die alle Räume mit gesundem Tageslicht versorgen. Die bodentiefen Verglasungen schaffen die optische Verbindung vom Eingang bis zum Garten, ein gemütlicher Kaminplatz als Raumteiler trennt den Koch- und Essbereich vom Wohnzimmer, dient aber gleichzeitig als verbindendes Element zwischen den Wohnwelten. Durch die hier genutzte Deckenöffnung bis unter das Dach und die spektakulären Pendelleuchten, die auf unterschiedliche Höhen angeordnet sind, entsteht ein Gefühl von maximaler Weite und Transparenz.
Das imposante Architektenhaus kommt aus der Fachwerkmanufaktur HUF HAUS und bietet mit über 300 Quadratmetern Wohnfläche auf drei Geschossen ausreichend Platz für die fünfköpfige Familie. Zwei Doppelgaragen sind symmetrisch auf beiden Seiten vor dem Haus angeordnet und haben den Bauherren während der Planung dazu inspiriert, die quadratischen Formen der beiden Nebengebäude als wiederkehrendes Gestaltungssymbol zu nutzen.
Bei der Grundrissplanung für das Fachwerkhaus hatte der Familienvater funktionale Vorstellungen. Genau wie im Erdgeschoss sollte auch im Obergeschoss eine klare Zonierung zwischen Elternbereich auf der einen und Kinderbereich auf der anderen Hausseite geschaffen werden. Über den luftigen Galeriebereich mit Echtholzboden, der dank zahlreicher Gemälde einer Kunstausstellung ähnelt, gelangt man nun zu den individuellen Rückzugsorten, die jeweils über ein eigenes Badezimmer verfügen.
Zur Leistungskette gehört auch die Planung und Realisierung des HUF Kellers. Das zum Wohnbereich ausgebaute, helle Untergeschoss beherbergt einen Fitnessraum mit Sauna und Whirlpool-Wanne sowie einen imposanten Weinkeller.
Trotz großer Glasflächen entspricht das moderne Fachwerkhaus, das mittels Wärmepumpe beheizt wird, dem KfW-Effizienzhaus Standard 55 und ist mit dem Goldsiegel der Deutschen Gesellschaft für Nachhaltiges Bauen e. V. ausgezeichnet. Für Wohnkomfort der Extraklasse sorgt eine intelligente Gebäudeautomation, die auf KNX-Basis im Haus unsichtbar integriert ist. Neben den klassischen Funktionen wir Licht-, Temperatur- und Jalousiesteuerung, gewährleisten Bewegungsmelder und programmierte Szenen, dass die Tagesabläufe so angenehm wie möglich für die Bewohner gestaltet werden. Gesteuert werden die Szenen und Funktionen bequem per Handy, Touchdisplay oder Taster.
















