Beschreibung
Individuelle Planung für individuelle Bedürfnisse
Das eigene Unternehmen nach außen zu präsentieren und sich in den Büro-Räumen wohl zu fühlen war für die Kunden sehr wichtig.
Die große Diele im Erdgeschoss bietet Zugang zu allen weiteren Räumen und dem Obergeschoss. Hier findet sich neben 2 Büroräumen, dem HWR und den WC-Räumen ein großer Konferenzraum für gemeinsame Besprechungen. Die beiden Geschosse werden durch eine mittig gesetzte Treppe verbunden, die das offen gestaltete Bürogebäude noch moderner wirken lässt.
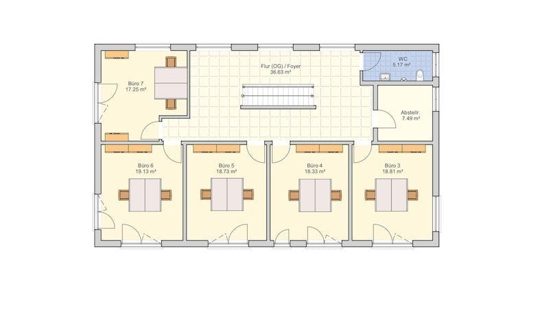
Im Obergeschoss bleibt viel Raum für Einzelbüros. Alle Büros sind durch die vielen Fenster lichtdurchflutet und sorgen für eine angenehme Atmosphäre.
Das Highlight des hochmodernen Bürogebäudes findet sich im Dachgeschoss. Hier können die Mitarbeiter Ihre Pause gemütlich in einer Lounge verbringen. Gemeinschaftliche After-Work Partys können hier schön stattfinden. Gerade an den warmen Sommer-Tagen bietet sich der Balkon für ein solches Event gut an.











