Beschreibung
Wohnkomfort auf höchster Ebene
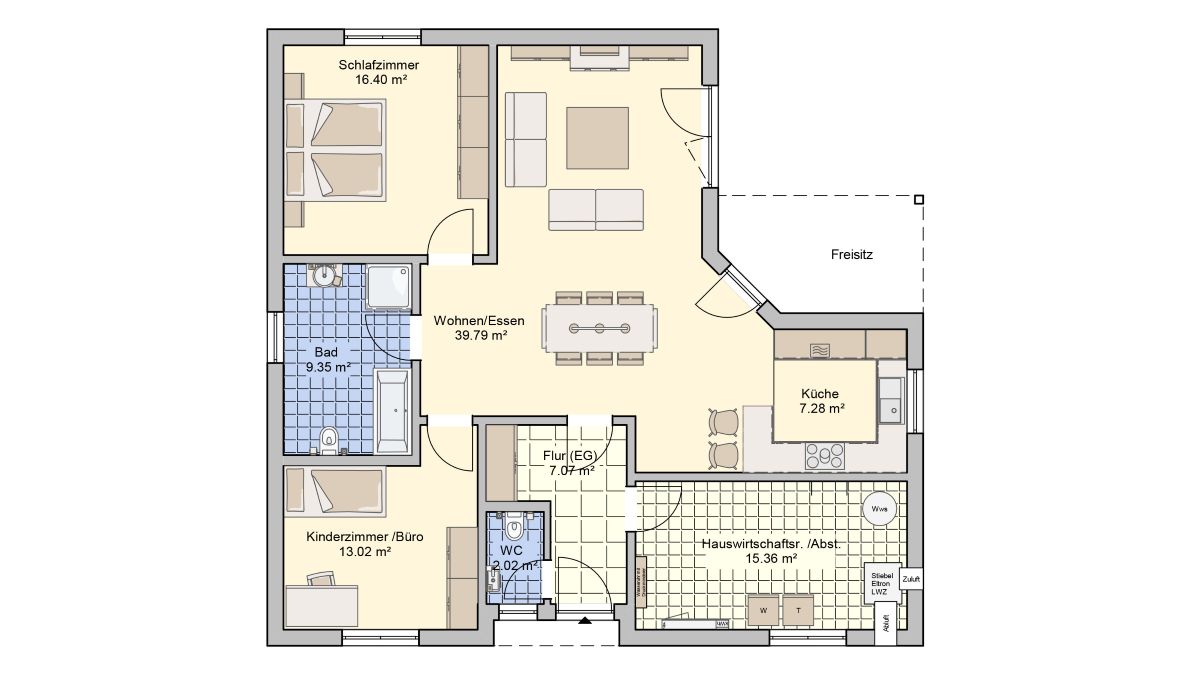
Zeitgemäße Ausstattung gepaart mit übersichtlichem Raumgefüge bildet die Charakteristik des modernen Bungalows Mala. Auf einer ausgebauten Grundfäche von ca. 119 m² eröffnet sich das individuelle Wohnerlebnis. Hier heißt es: Gäste bewirten in einem offen gestalteten Wohnraum mit Küche und Essbereich – und dies in nächster Nähe zu Besuch oder Familie.
An lauen Sommerabenden den Tag auf dem Freisitz bzw. der Terrasse ausklingen lassen und der Natur ganz nah sein – der Bungalow bietet auch hierfür entsprechende Entfaltungsspielräume.
Für die Bedürfnisse des alltäglichen Lebens ist im behaglichen Bad, im Schlaf- und Kinderzimmer oder im Büroraum ganz nach Geschmack des jeweiligen Hausherren gesorgt. Kurze Wege verbinden die Diele mit dem Wohnbereich, dem Hauswirtschaftsraum oder mit dem komfortablen Gäste-WC.






