Beschreibung
Eine Ebene und alles was das Herz begehrt
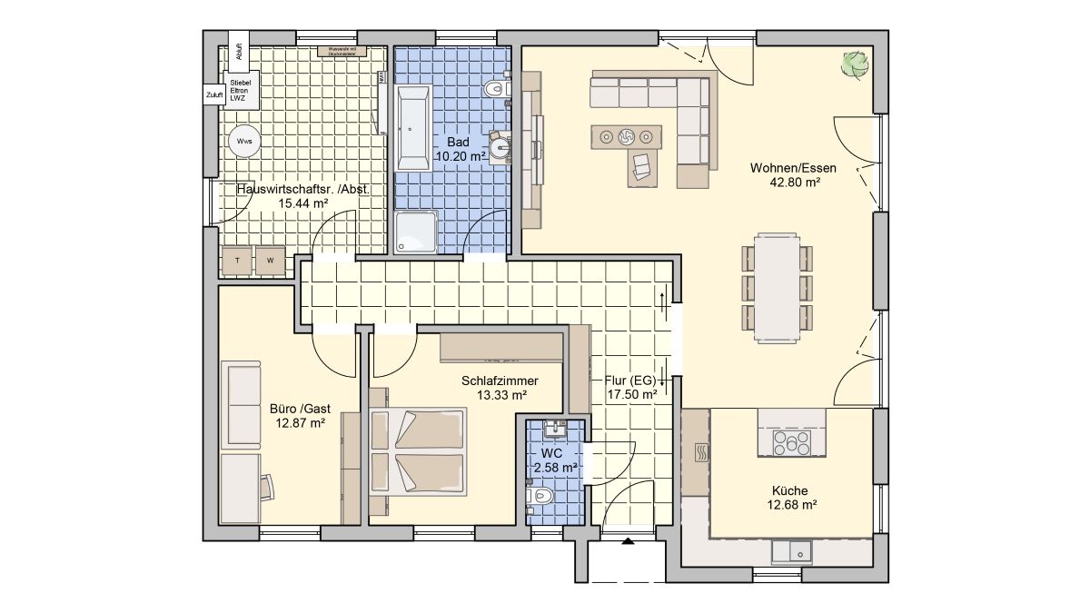
Der modern geschnittene Bungalow ist nicht nur von Außen ein echter Hingucker. Vom Eingangsbereich des Hauses gibt es einen direkten Zugang durch eine Schiebetür in den großen Wohn- und Essbereich. Die offene Küche schließt direkt an den Essbereich an und lässt den Raum größer und heller wirken. Große, bodentiefe Fenster unterstreichen diesen Effekt und erfüllen den Wohnraum mit angenehmem Tageslicht.
Neben einem geräumigen Badezimmer, einem Hauswirtschaftsraum und dem Schlafzimmer findet sich noch ein weiterer Raum der beispielsweise als Büro dienen, oder zu einem Kinderzimmer umfunktioniert werden kann. Das Gäste-WC im Eingangsbereich sorgt für eine perfekte Nutzung der insgesamt 127,43qm Wohnfläche.








