Beschreibung
Ideal für schmale Grundstücke
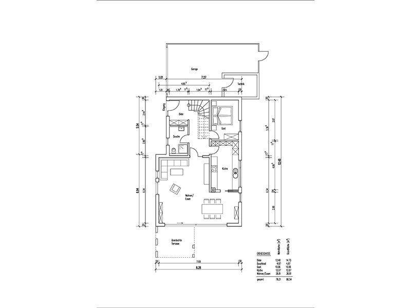
Zweigeschossig und mit einem schlanken Baukörper ist dies ein idealer Entwurf für ein schmales Grundstück in der Stadt. Schon mit seiner asymmetrischen Dachgeometrie weckt er Erinnerungen an eine urbane Bebauung. Der schlanke Baukörper begnügt sich mit 8,28 Meter Breite, erstreckt sich dabei aber im Gegenzug über eine Länge von 12,48 Meter. Das ist ideal für eine städtische Lückenbebauung. Planerisch bietet ein solcher Baukörper die Chance, die Funktionsbereiche in der Längsachse zu staffeln und so klar voneinander geschiedene Funktionsbereiche zu schaffen.
Das kommt im Erdgeschoss vor allem dem Wohnbereich zugute, der im hinteren Teil des Hauses einen geschützten, durch Zwischentüren abgeschirmten Trakt bildet. Auch die Küche wurde abgetrennt, lässt sich aber über eine Schiebetür wieder eng an den Essplatz anschließen. Große Fenster öffnen das Wohnensemble vor allem nach hinten in Richtung Garten, so dass es wie ein Rückzugsort im relativ dicht bebauten Umfeld funktioniert. Im Obergeschoss macht sich die zweigeschossige Bauweise wohltuend bemerkbar. Auf 79 Quadratmeter Fläche schafft sie Raum für großzügige, gut belichtete Individualräume, die sich noch durch ein kleines Arbeitszimmer und einen Hauswirtschaftsraum ergänzen ließen.








