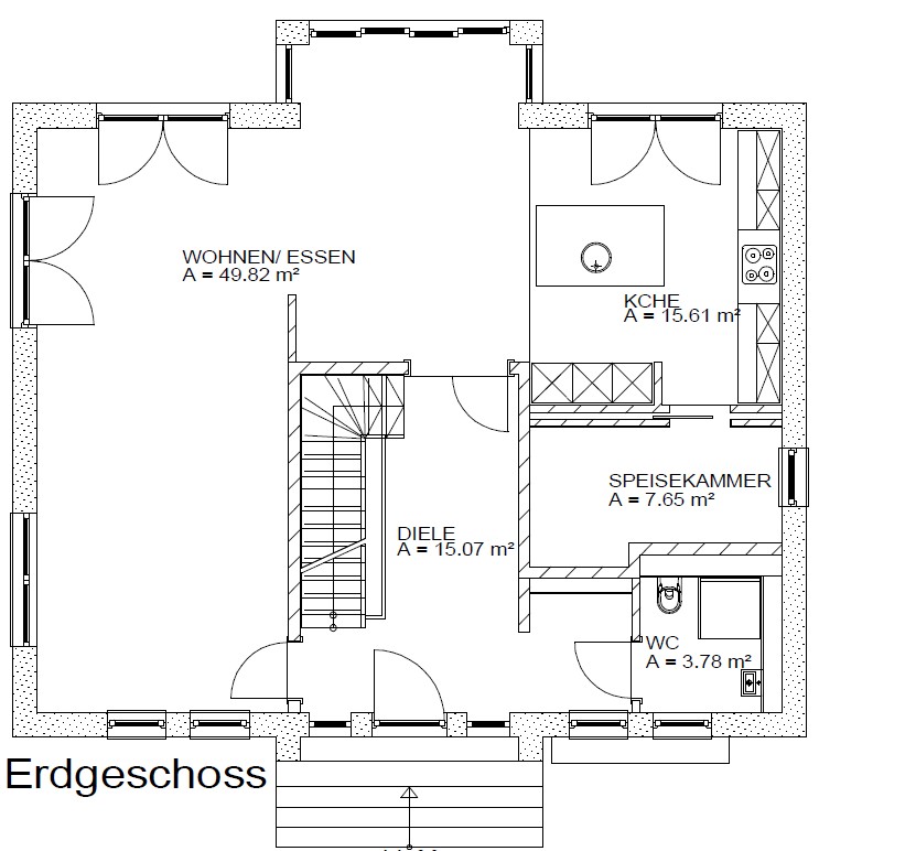
Beschreibung
Diese moderne Stadtvilla verbindet zeitlose Architektur mit hochwertiger Ausstattung. Neben dem ausgebauten Dachgeschoss besitzt das Einfamilienhaus einen WU-Wohnkeller, der in wasserundurchlässigem Beton ausgeführt ist. Durch seine Bauweise hält der Keller Feuchtigkeit ab und kann als vollwertiger Wohnraum genutzt werden.
Architektonische Gestaltung & Hochwertige Ausstattungsmerkmale
Bereits außen prägt ein umlaufendes Stuck-Fassadenband das elegante Erscheinungsbild. Ein großzügiger Erker, der sich vom Erdgeschoss bis ins Obergeschoss erstreckt und zur Terrasse ausgerichtet ist, verleiht dem Baukörper zusätzliche Tiefe. Jumbo-Lichtschächte und ein Sockel in Bossenoptik unterstreichen die wertige Ausführung. Vier Flachdachgauben mit Stuckapplikationen sowie die Biberschwanz-Kronendeckung bilden ein harmonisches Dachbild. Fallrohre, Dachrinnen und Blechverkleidungen sind in pulverbeschichtetem Aluminium in Anthrazit ausgeführt und fügen sich stimmig in das Fassadenkonzept ein.
Auch im Bereich der Fenster setzt das Haus auf Qualität: anthrazit folierte Elemente mit innenliegenden Sprossen, teils ausgestattet mit Raffstores oder Aluminium-Rollläden, dazu P4A-Sicherheitsverglasung im Erdgeschoss. Zur Terrasse öffnet sich ein großzügiges, vierflügeliges Falt-Schiebefenster, das den Wohn-Essbereich optisch erweitert.
Im Inneren setzt sich die hochwertige Ausstattung fort. Die Gebäudeautomation ist vollständig in KNX-Technik ausgeführt. Raumhohe Stahl-Lofttüren in Anthrazit mit Oberlicht schaffen klare Linien und lassen viel Licht fließen. Eine Lichtvoute (architektonische Lösung für indirekte Beleuchtung) im Wohnzimmer entlang der Terrassenseite sorgt für indirekte Beleuchtung und integriert eine verdeckte Gardinenleiste. Die Treppe aus weißem Massivholz, mit gebeizten Trittstufen und Handlauf, wird durch eingefräste LED-Beleuchtung, Setzstufen in Kassettenoptik und Kassettenstuck an der Wand stilvoll ergänzt.
Vier Bäder – darunter ein großzügiges Masterbad mit En-Suite-Raumabfolge und freistehender Wanne – bieten hohen Komfort. Im Wohnkeller stehen neben zusätzlichen Räumen auch ein Bad und eine Sauna zur Verfügung. Das ausgebaute Dachgeschoss verfügt ebenfalls über ein Bad sowie einen separaten Raum und bietet Zugang zur Dachterrasse mit Glasgeländer und großem vierflügeligem Fensterelement.
Hochwertige Porcelanosa-Fliesen in Parkettoptik und akzentsetzende Fliesentapeten runden das Interieur ab. Im Hobbyraum sind zudem versteckte Bodensteckdosen integriert, um maximale Flexibilität in der Nutzung zu ermöglichen.


























