Als Anne und ihr Mann das Haus seines Großvaters 2015 überschrieben bekamen, war schnell klar: Dieses Zuhause soll bleiben – aber moderner, nachhaltiger und mit ganz persönlicher Note. 2019, nach dem Tod des Opas, fiel die Entscheidung für eine umfassende Sanierung. Drei Jahre Bauzeit später – von 2020 – 2023 – wurde aus dem Erbstück ein fast neuer, energieeffizienter Lebensraum für die junge Familie.
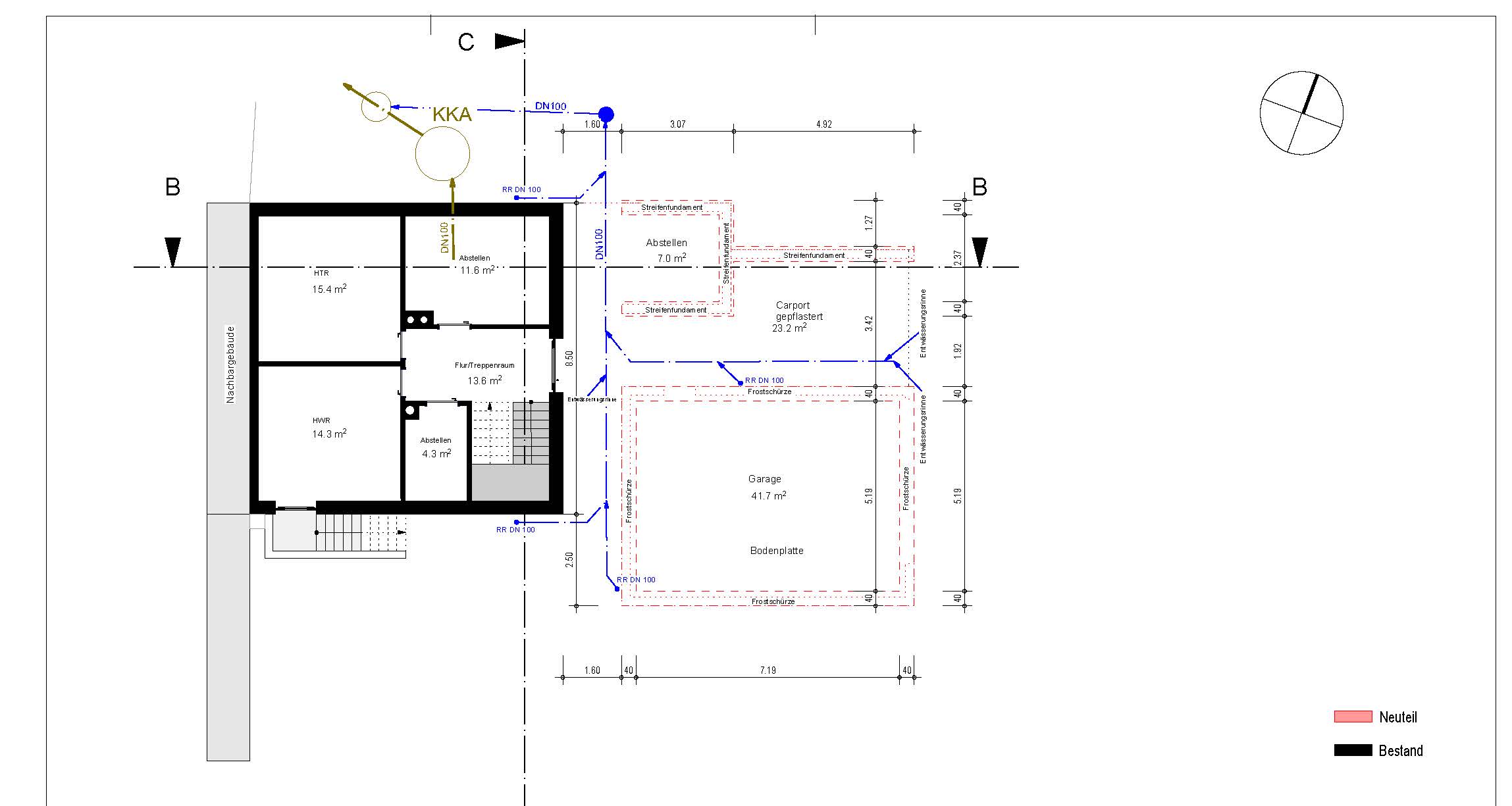
Grundrisse
Vom Sanierungsplan zum fast kompletten Neubau
Was ursprünglich mit einem neuen Bad und einer breiteren Treppe begann, entwickelte sich zu einem umfangreichen Umbauprojekt.
Eckdaten zum Projekt:
Durch die Zusammenarbeit mit einem Architekten entstand ein klares, modernes Gesamtkonzept – geplant mit viel Eigenleistung, Herzblut und handwerklichem Mut.
Sanierungsgalerie
Energieeffizienz & Technik
Die Familie legte großen Wert auf ein zukunftsfähiges Energiekonzept:
So entstand ein Zuhause, das den Komfort eines Neubaus bietet – und die Seele eines Familienerbes bewahrt.
Innenräume mit Charakter
Die Innenräume kombinieren modernes Design und Alltagstauglichkeit:
Das Ergebnis
Aus einem traditionellen Einfamilienhaus wurde ein modernes, energieeffizientes Zuhause, das Geschichte, Design und Technik harmonisch verbindet – geplant mit Bedacht, umgesetzt mit Herz und viel Eigenleistung.



